集术装配公建 • 提升人居环境,助推乡村振兴 | 集术科技系列三
全面提升建设生态宜居的乡村环境 聚焦人民美好生活的期盼
改善农村人居环境,建设美丽宜居乡村是实施乡村振兴战略的一项重要任务,更是聚焦人民群众对美好生活的热切期盼。全面促进乡村振兴,加强基础和公共设施建设,如教育、养老、卫生医疗及文化广场、产业兴旺等建设,进一步缩小与城市的差距,全面提升乡村人居环境, 把乡村建设成为生态宜居、富裕繁荣、和谐发展的美丽家园,进一步提升人民群众的幸福感、获得感、安全感。
大力推动绿色基础设施建设向农村延伸,科教文卫体等公共服务向农村倾斜,建设适应现代生活、体现乡土风貌、山清水秀、天蓝地绿的美丽乡村。
装配式建筑优势凸显,低碳城市建设呼唤绿色建筑
国家十四五规划纲要提出,发展智能制造、推广绿色建材、装配式建筑和钢结构住宅,建设低碳城市。在国家倡导低碳经济发展指导下,乡村振兴建设既要有颜值,也要保护生态、体现原生态风貌,对乡村建筑进行创新和应用,及建筑风貌进行合理控制和引导。
钢结构装配式建筑可以实现乡村风貌更加规范化和合理化,结构更安全,节水、节能、节材、钢材可回收利用等突出优势,能有效地提升乡村建筑品质和居住舒适度,改善农村人居环境,促进乡村绿色发展。
健全社区养老建设体系,实现老年人“原地养老”的理想模式
“老有所医,老有所养”成为建设美丽乡村的重要目标之一。中共中央、国务院印发的《乡村振兴战略规划(2018—2022年)》(下称乡村规划)指出:
——开发农村康养产业项目。城乡居民消费拓展升级趋势,结合各地资源禀赋,深入发掘农业农村的生态涵养、休闲观光、文化体验、健康养老等多种功能和多重价值。
——鼓励村集体建设用地优先用于发展养老服务。
集术科技公司最新推出集术装配宜居公寓,为乡村养老机构、康养公寓等公建设施,提供高品质的钢结构装配式建筑产品。
集术装配宜居公寓
一层、二层建筑面积均为393.66㎡
舒适宜居的办公环境,促进农村形象逐渐向城镇化现代化发展
随着社会经济的发展,农村办公建筑的需求不断增加,建筑的外观感以及实用的特性是未来发展的研究重点,它包括了安全、健康、舒适、经济因素等。装配式建筑有效改善工作场地的经济效益,提高安全工作的水平,适应未来更多新兴行业的需求及建设要求,从而达到节约资源,保护环境为目的。
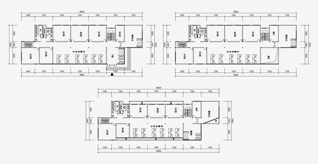
集术装配办公楼
一层建筑面积为680.79㎡ 二层建筑面积为633.27㎡
三层建筑面积为622.56㎡
集术科技打造更具适配性的城乡政务空间
在城市建设飞速发展的时代背景下,良好健全的城市政务空间,为城市空间注入新活力,集术科技持续探索多样化适配空间场景应用,满足公共职能场所的建设要求,让其具有更多选择性、高效性、便捷性、坚实性,推动城市公共服务职能空间高质量发展。
集术装配检查站
集术装配检查站公建项目高效建设中

集术科技更多应用,期待与您共同开发更多领域合作
学校、幼儿园、医疗室、老年公寓、福利院及村镇(居)委会等公共建筑,新建社区保障性住房、拆迁安置房、合村并镇、特色小镇、红色小镇及特色产业建设等领域,集术科技为您提供全方位的服务和合作。
可定制化设计 满足差异化需求 提供系统化解决方案
可根据各村镇的人口密度、文化功能定位及村镇风貌等综合因素进行定制化设计,满足各村镇发展特色、差异化、功能化等建设需求,提供系统化解决方案。
商洽合作电话
400-678-0270














